Urban Villa
Live big with a small footprint. DRHomes’ new Urban Villas are designed to maximise small lots and make the most of every inch of real estate. Made to nestle into our local communities, Urban Villas combine modern charm and surprisingly spacious interiors complete with all the essentials to start living your best life from day one. Stacked with a long list of quality inclusions, our Urban Villas are the definition of affordable living without compromise.
- 3
- 2
- 1
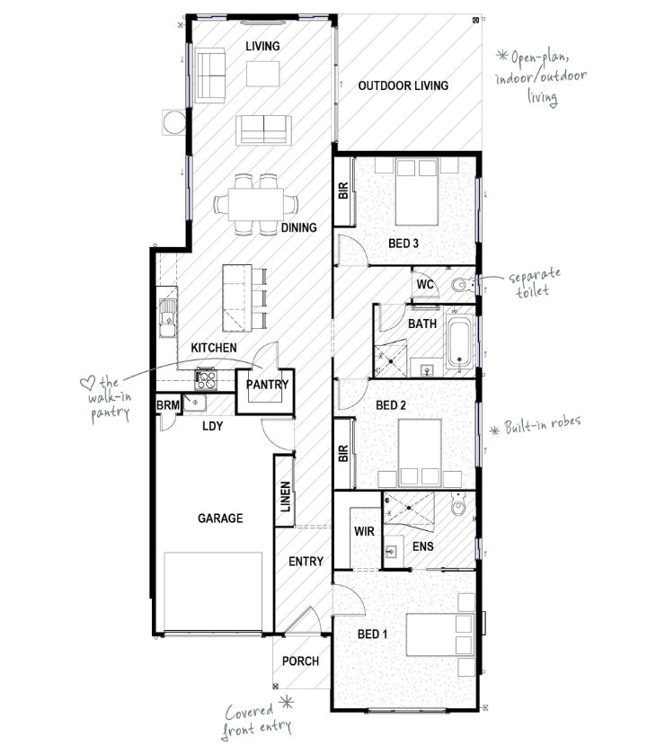
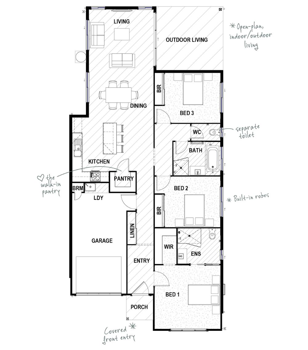
| Master Suite | Bed 1 | 3.8 x 3.9m |
|---|---|
| Bedroom 2 | 3.0 x 3.9m |
| Bedroom 3 | 3.0 x 3.9m |
| Living | 3.5 x 3.9m |
| Dining | 3.0 x 3.9m |
| Outdoor Living | 3.7 x 3.9m |
| Garage | 6.0 x 3.2m |
| House width | 9.19m |
|---|---|
| House length | 19.34 |
| Total floor area (incl. Outdoor Living) | 162.93m2 |
|---|
Got some questions? We're here to help.
If you'd like to find out more, or have any questions about building your new home with DRHomes,
please complete the enquiry form below and a Home Coach will be in touch with the answers you need.
Or if you'd prefer to chat, call us on 07 3801 1328
Your information is collected by DRHomes Pty Ltd and will be used and held in accordance with our Privacy Policy. Information you provide will be used for the purpose of assisting your enquiry.
If you do not provide this information, we may not be able to help with your enquiry. To access or change your information, please contact us using the details set out in our Privacy Policy.
See our list of not-so-standard inclusions
At DRHomes, we include as standard many of the things that some builders would call upgrades.
FIND OUT MOREGet in touch
Whether you've built before or it's your first time, it can help to talk through your options. We'd love to chat, so get in touch today.
CALL 3801 1328 SEND US AN EMAILFloor plan prepared before construction. Floor plan is illustrative and indicative only. Finished product may differ from floor plan. Whilst every care is taken, no warranty is given or representation is made as to the accuracy or completeness of the information in the floor plan. Prospective buyers should refer to contract documents and should seek and rely on their own advice. All images and renders are indicative only, and the pricing on this website does not include as standard, all external landscaping including clothesline, fencing, driveway and letterbox. As this is impacted by the size of the block, these costs are excluded. Furniture shown is not included. For detailed home pricing please speak to one of our Home Coaches today. 'Nominated block widths are indicative only. Setbacks vary on different estates, please make your own enquiries regarding applicable building setbacks.





