googleeacf2015339b54e4.html

DESIGN FINDER

  • HOME TYPE
  • BEDS
  • LIVING
  • BATHS
  • LOT WIDTH

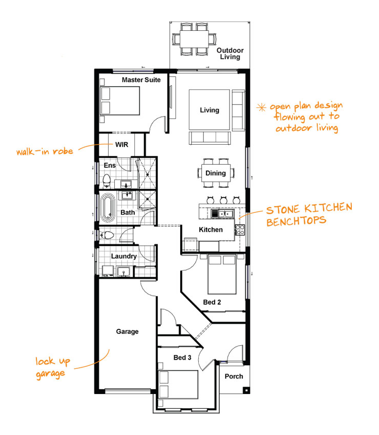
Rose 15Modern

From $219,000

Perfect for first home buyers or empty nesters, this three bedroom home takes advantage of open plan design to maximise space and style.

  • 3
  • 2
  • 1
Rose 15 Modern
ROOM DIMENSIONS
Master Suite3.6 x 3.0m
Bedroom 23.3 x 3.0m
Bedroom 33.0 x 3.0m
Living4.0 x 3.7m
Dining4.6 x 3.1m
Outdoor Living4.2 x 2.5m
Garage3.0 x 5.8m
HOUSE DIMENSIONS
House width8.1m
House length20.4m
FLOOR AREA
Total floor area
(incl. Outdoor Living)
151.0m2
SEE LARGER PLAN DOWNLOAD A BROCHURE ENQUIRE NOW

Explore our loooong list of inclusions

Scroll over the categories below to see the standard inclusions for each part of the home:

Ceiling
  • 2440mm ceiling height
Window Coverings
  • Vertical blinds to windows and sliding glass doors (excludes garage)
  • Flyscreens to all opening windows sashes and sliding glass doors
Flooring
  • Ceramic floor tiles from selected range to entry, living areas, kitchen and wet areas
  • Quality carpet with 10mm underlay from standard range to bedrooms, study, and media room (design specific)
Paint
  • 3 coat paint system including:
  • Washable low sheen acrylic to walls and enamel to trims and doors (one colour)
  • Exterior acrylic to external painted surfaces
Insulation
  • Ceiling insulation incl. Outdoor Living area and wall sisalation
Internal Doors
  • Painted flush panel internal passage doors from selected range
  • Chrome door furniture from selected range
  • Privacy locks to bath, ensuite and WC
Skirting & Architraves
  • 68mm skirting from standard range
  • 42mm architraves from standard range
  • 90mm cove cornice throughout
Storage
  • Linen cupboard with four melamine shelves
Benchtops
  • Benchtops from selected range
Appliances
  • 600mm stainless steel electric multifunction oven
  • 600mm ceramic 4 burner electric cooktop
  • 600mm stainless steel slide out rangehood
  • Stainless steel dishwasher
Sink
  • 1 3/4 bowl stainless steel inset sink
  • Chrome flick mixer tap
Cabinets
  • Matt finish kitchen cabinets from selected range
  • Drawers, microwave and dishwasher provision as nominated on plans
  • Overhead cupboards as nominated on plans
  • Handles from selected range
Bulkheads
  • Painted bulkheads above overhead cupboards and pantry
Splashbacks
  • Ceramic tiles from selected range to kitchen splashback
Pantry
  • White melamine shelves
Vanity
  • Matt finish floor-mounted vanities from selected range (no drawers)
  • Laminate benchtops from selected range
  • Choice of ceramic basins from selected range
  • Chrome flick mixer tapware
  • Aluminium framed mirror to length of vanity unit
Shower & Bath
  • White acrylic inset bathtub
  • Standard 6mm semi-frameless shower screens with clear glass and polished silver frame
  • Chrome mixer tapware
  • Ceramic wall tiling from selected range
Bathroom Accessories
  • Chrome toilet roll holders
  • Chrome single towel rails
Toilet
  • Close coupled white toilet suite with soft close seat
Powerpoints
  • Earth leakage safety switch and circuit breakers
  • Two (2) single power points to master bedroom and living rooms
  • Single power points to each room (including garage)
  • Single power points to fridge space, microwave space, garage door motor and dishwasher space
Lights
  • LED white 100mm recessed downlights throughout (Minimum two (2) per room except WCs, laundry and WIRs have minimum one (1) per room). Refer to plan
  • Exhaust fan with light to bathroom and ensuite
  • Single fluorescent light to garage
Smoke Detectors
  • Photoelectric smoke detectors (with battery backup)
Heating/Cooling
  • White ceiling fans to living areas, bedrooms, and rear outdoor living
Phone, TV & Internet
  • One (1) TV Point
  • One (1) phone point
  • One (1) data point
  • One (1) NBN connection point
Water
  • Mains pressure 250lt electric hot water system
Storage
  • Walk-in robe to master bedroom
  • Built-in robes with vinyl sliding doors to bedrooms
  • Melamine shelf and rail to all robes
Benchtop
  • Laminate benchtop from selected range
Cabinets
  • Freestanding white steel cabinet
Sink
  • Stainless steel tub
  • Chrome flick mixer tap
Door
  • Powder coated aluminium sliding glass door or flush panel door with 1/3 clear glass insert (design specific)
Roof
  • Colorbond Steel Roof with full sarking
Facade Features
  • Clay face bricks from selected range with off-white mortar
  • Colorbond fascia, quad gutters, and painted PVC downpipes
  • Feature cladding and render to front facade where shown on plans
Garage
  • Colorbond remote garage door with two handsets and one (1) wall unit
Portico
  • Ceramic tiles to front porch/portico
Front Door
  • Paint grade front entry door with clear glazing from selected range
Windows
  • Powder coated aluminium windows with clear glass
Security
  • Choice of entrance lockset from selected range with deadlock
  • Keyed locks to all opening window sashes and sliding doors
Windows
  • Powder coated aluminium windows and sliding glass doors with clear glass as nominated on plans
Exterior Features
  • Front and rear garden taps
  • TV antenna (not included in fibre optic estates)
  • 2.2kW Solar Power System with Tier 1 Jinko Panels & 2kW SolaX Inverter
Outdoor Living
  • Ceramic tiles to outdoor living area

WANT TO SEE MOREIf you'd like to see samples of the finishes and fittings included in our standard range, call us on 07 3801 1328.

Explore our loooong list of inclusions

Scroll over the categories below to see the standard inclusions for each part of the home:

Ceiling
  • 2590mm ceiling height
Window Coverings
  • Roller blinds to windows and sliding glass doors (excludes garage)
  • Flyscreens to all opening windows sashes and sliding glass doors
Flooring
  • Ceramic floor tiles or timberlook vinyl plank flooring from standard range to main living areas
  • Ceramic floor tiles to wet areas
  • Quality carpet with 10mm underlay from standard range to bedrooms, study, and media room (design specific)
  • Epoxy floor finish to garage from selected range (12 colours to choose from)
Paint
  • 3 coat paint system including:
  • Washable low sheen acrylic to walls (one colour)
  • Enamel to trims and doors (one colour)
  • Exterior acrylic to external painted surfaces
Insulation
  • Ceiling insulation incl. Outdoor Living area and wall sisalation
Internal Doors
  • Feature passage doors from selected range
  • Chrome door furniture from selected range
  • Privacy locks to bath, ensuite and WC
Skirting & Architraves
  • 68mm skirting from standard range
  • 42mm architraves from standard range
  • 90mm cove cornice throughout
Storage
  • Linen cupboard with four melamine shelves
Benchtops
  • 20mm Stone kitchen benchtops from standard range
Appliances
  • 900mm stainless steel electric multifunction oven
  • 900mm stainless steel gas cooktop
  • 900mm undermount rangehood
  • Stainless steel dishwasher
Sink
  • 1 3/4 bowl stainless steel inset sink
  • Chrome flick mixer tap
Cabinets
  • Matt finish kitchen cabinets from selected range
  • Drawers, microwave and dishwasher provision as nominated on plans
  • Overhead cupboards as nominated on plans
  • Handles from selected range
Bulkheads
  • Painted bulkheads above overhead cupboards and pantry
Splashbacks
  • Ceramic tiles from selected range to kitchen splashback
Pantry
  • White melamine shelves
Vanity
  • Matt finish vanities from selected range
  • Laminate benchtops from selected range
  • Choice of ceramic basins from selected range
  • Chrome flick mixer tapware
  • 900mm high frameless polished edge mirror to length of vanity
Shower & Bath
  • White acrylic inset bathtub
  • Modern 6mm semi-frameless showerscreens with clear glass and polished silver frame
  • Tiled niche to showers (size is design specific)
  • Chrome mixer tapware
  • Chrome slimline shower with wall mixer
  • Ceramic wall tiling from selected range
Bathroom Accessories
  • Chrome toilet roll holders
  • Chrome double towel rails
Toilet
  • Close coupled white toilet suite with soft close seat
Powerpoints
  • Earth leakage safety switch and circuit breakers
  • Two (2) double power points to master bedroom and living rooms
  • Double power points to each room (including garage).
  • Single power points to fridge space, microwave space, garage door motor and dishwasher space
  • One (1) single weatherproof powerpoint to rear outdoor living area
Lights
  • LED white 100mm recessed downlights throughout (Minimum two (2) per room except WCs, laundry and WIRs have minimum one (1) per room). Refer to plan
  • Heat/fan/light units to bathroom and ensuite
  • Double fluorescent light to garage
Smoke Detectors
  • Photoelectric smoke detectors (with battery backup)
Heating/Cooling
  • Stainless steel fan to living areas and bedrooms
  • Stainless steel fan to outdoor living area
  • Reverse cycle split system air conditioner to living room
Phone, TV & Internet
  • Two (2) TV Points (designs with Media or MPR include three (3) TV points)
  • Two (2) phone points
  • One (1) data point
  • Smart Home Hub (smart wiring)
  • One (1) NBN connection point
Water
  • Heat Pump hot water system
Storage
  • Walk-in robe to master bedroom
  • Built-in robes with vinyl sliding doors to bedrooms
  • Melamine shelf and rail to all robes
Benchtop
  • Laminate benchtop from selected range
Cabinets
  • Matt finish cabinets from selected range
Sink
  • 45L inset laundry tub
  • Chrome flick mixer tap
  • Choice of ceramic splashback tiles from selected range
Door
  • Sliding glass door or a flush panel door or a joinery door (design specific and all with clear glass)
Roof
  • Colorbond steel or flat profile tile roof with full sarking (design specific)
Facade Features
  • Clay face bricks from selected range with off-white mortar
  • Colorbond fascia, quad gutters, and painted PVC downpipes
  • Feature cladding and render to front facade where shown on plans
Garage
  • Colorbond remote garage door with two handsets and one (1) wall unit
Portico
  • Ceramic tiles to front porch/portico
Front Door
  • Feature front entry door with clear glass from selected range (design specific)
Windows
  • Powder coated aluminium windows with clear glass
Security
  • Triple lock, entry lockset from selected range
  • Keyed locks to all opening window sashes and sliding doors
Windows
  • Powder coated aluminium windows and sliding glass doors with clear glass as nominated on plans
Exterior Features
  • Front and rear garden taps
  • TV antenna (not included in fibre optic estates)
  • ACREAGE DESIGNS ONLY
  • Two 22,500 litre in-ground water tanks
  • Bio treatment plant (Home sewage treatment plant)
  • N3 wind rating
  • 6.6kW Solar Power System with Tier 1 Jinko Panels & 5kW SolaX Inverter
Outdoor Living
  • Ceramic tiles to outdoor living area

WANT TO SEE MOREIf you'd like to see samples of the finishes and fittings included in our standard range, call us on 07 3801 1328.

Got some questions? We're here to help.

If you'd like to find out more, or have any questions about building your new home with DRHomes,
please complete the enquiry form below and a Home Coach will be in touch with the answers you need.
Or if you'd prefer to chat, call us on 07 3801 1328

* Indicates required field

Your information is collected by DRHomes Pty Ltd and will be used and held in accordance with our Privacy Policy. Information you provide will be used for the purpose of assisting your enquiry.
If you do not provide this information, we may not be able to help with your enquiry. To access or change your information, please contact us using the details set out in our Privacy Policy.

See our list of not-so-standard inclusions

At DRHomes, we include as standard many of the things that some builders would call upgrades.

FIND OUT MORE

Get in touch

Whether you've built before or it's your first time, it can help to talk through your options. We'd love to chat, so get in touch today.

CALL 3801 1328 SEND US AN EMAIL

Floor plan prepared before construction. Floor plan is illustrative and indicative only. Finished product may differ from floor plan. Whilst every care is taken, no warranty is given or representation is made as to the accuracy or completeness of the information in the floor plan. Prospective buyers should refer to contract documents and should seek and rely on their own advice. All images and renders are indicative only, and the pricing on this website does not include as standard, all external landscaping including clothesline, fencing, driveway and letterbox. As this is impacted by the size of the block, these costs are excluded. Furniture shown is not included. For detailed home pricing please speak to one of our Home Coaches today. 'Nominated block widths are indicative only. Setbacks vary on different estates, please make your own enquiries regarding applicable building setbacks.

KEEP UP TO DATE

For all the latest news, industry tips and special offers, register for our newsletter here:

All images and renders are indicative only, and the pricing on this website does not include as standard, all external landscaping including clothesline, fencing, driveway and letterbox. As this is impacted by the size of the block, these costs are excluded. Furniture shown is not included. For detailed home pricing please speak to one of our Home Coaches today. 'Nominated block widths are indicative only. Setbacks vary on different estates, please make your own enquiries regarding applicable building setbacks. QBCC No: 1165013